Dois por andar | 150m2 | Duas suítes | Banheiros com bancadas em mármore Piguês













125m2 | Duas suítes, sendo uma master, com closet e dois banheiros



















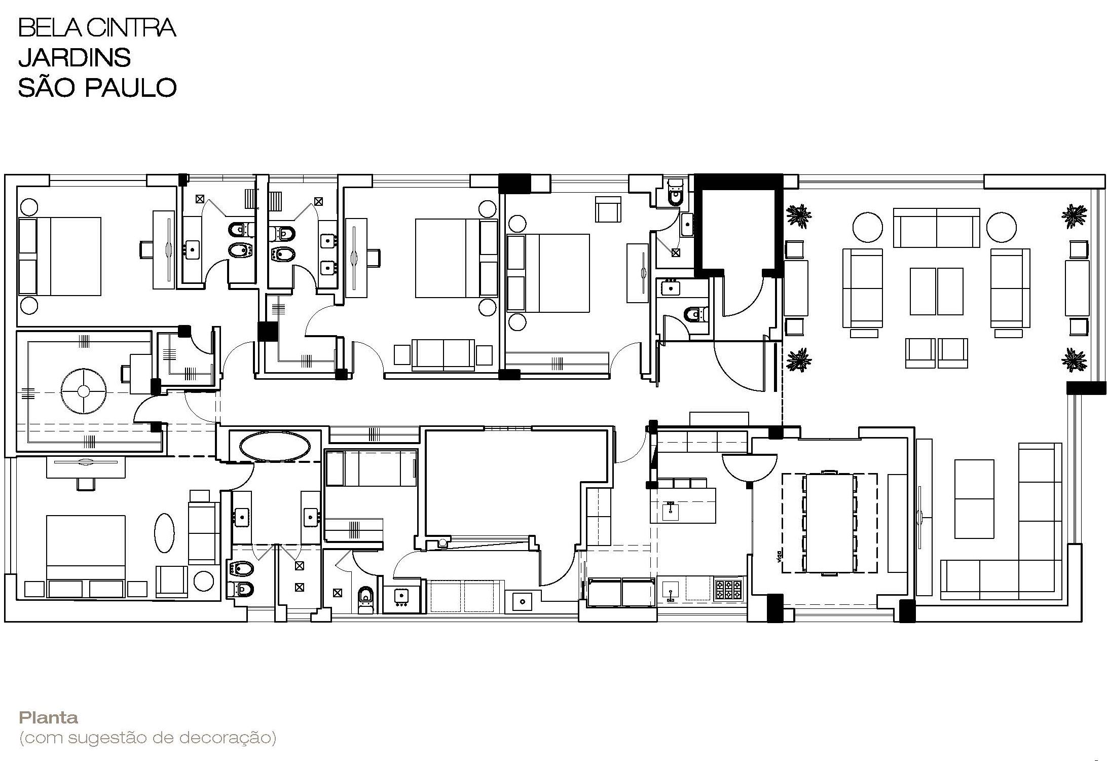
173m2 |Sala de estar, escritório, varanda, sala de jantar e cozinha integradas

















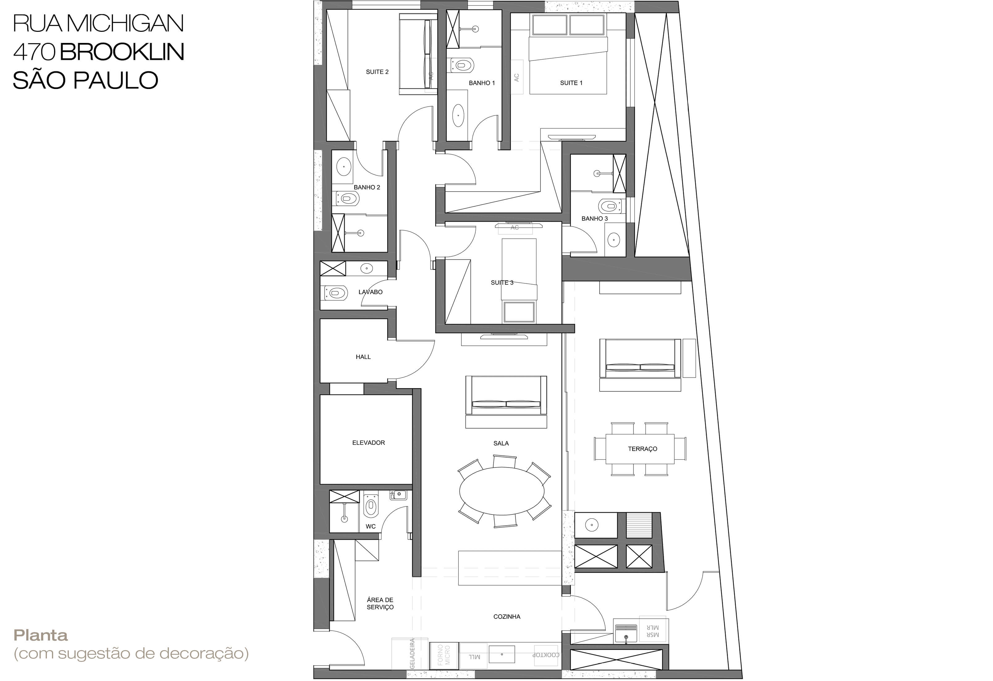
128m2 | Três suites | Condomínio Habitarte | Elevador exclusivo






















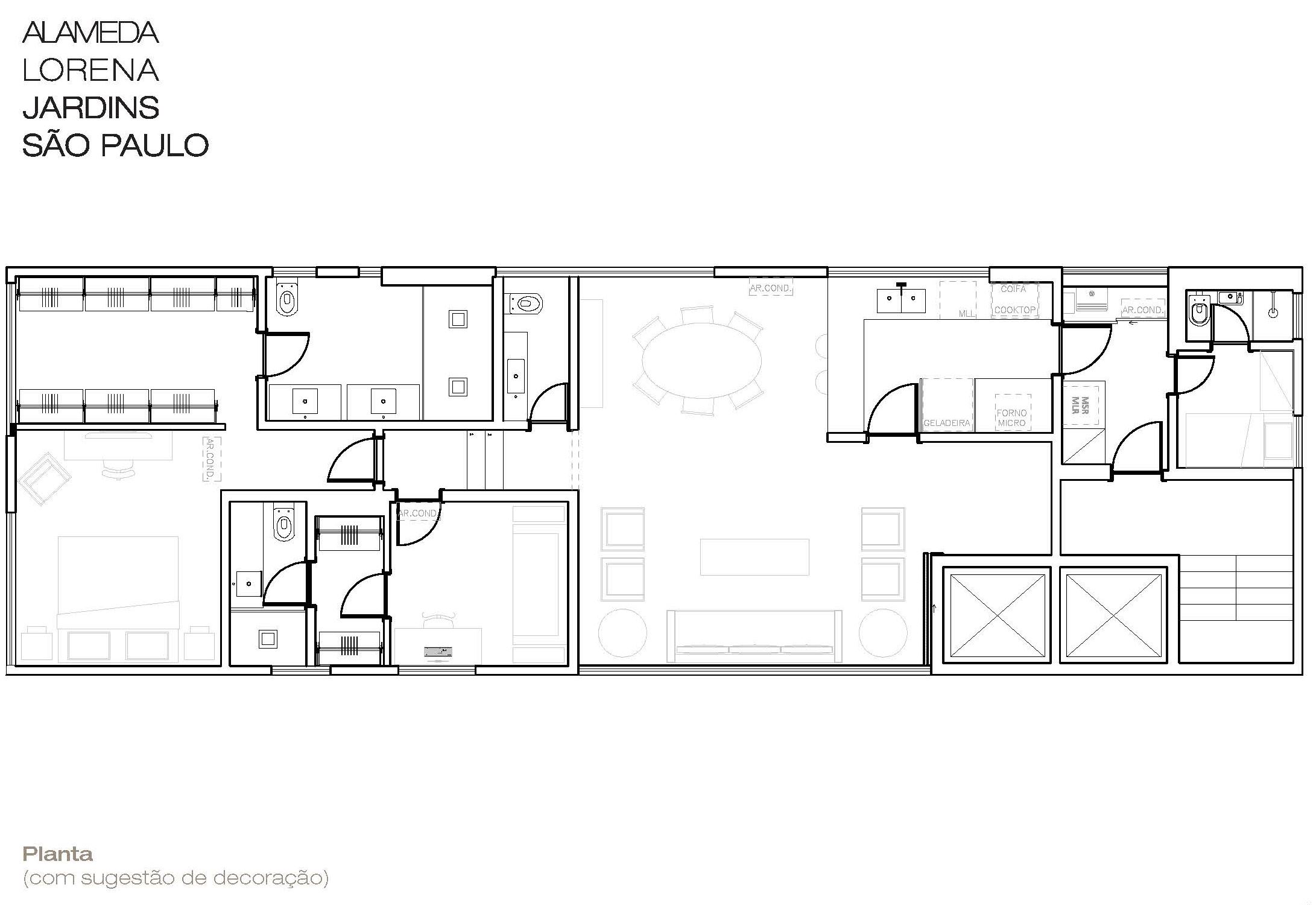
Entre Lorena e Oscar Freire | 216m2 | Um por andar | 3 suítes


















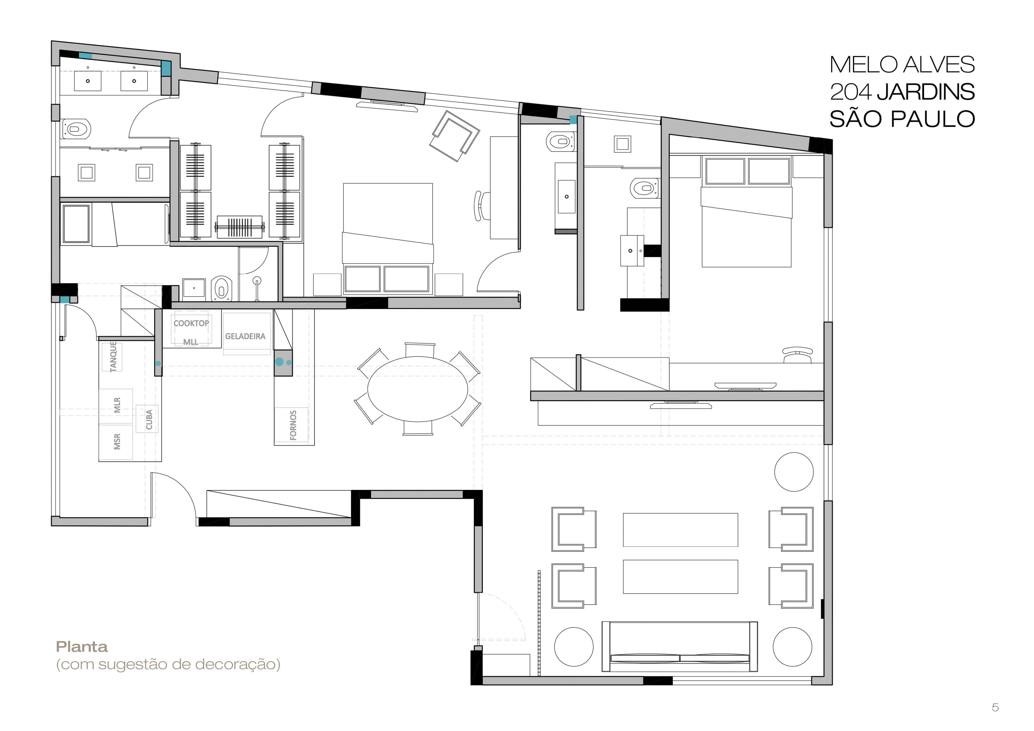
R. Doutor Melo Alves | 125m² | Duas quadras do metrô Oscar Freire | Totalmente reformado | Duas suítes, sendo uma máster | 1 vaga



















Dois por andar | Oscar Freire | Próximo do metrô | 153m² | Totalmente reformado | 1 suíte máster e dois dormitórios | 1 vaga e 1 vaga alugada



















Dois por andar | Jardins | SP | Ao lado do metrô Oscar Freire | Totalmente reformado | 1 suíte e um dormitório | 140m2 |
1 vaga













No melhor ponto da Oscar Freire | Jardins | SP | Totalmente reformado | 1 suíte máster com closet | 79m²













Avenida Pavao | 3 quartos | Totalmente reformado | 144m2 | Varandas | Prédio com grande infraestrutura de lazer

















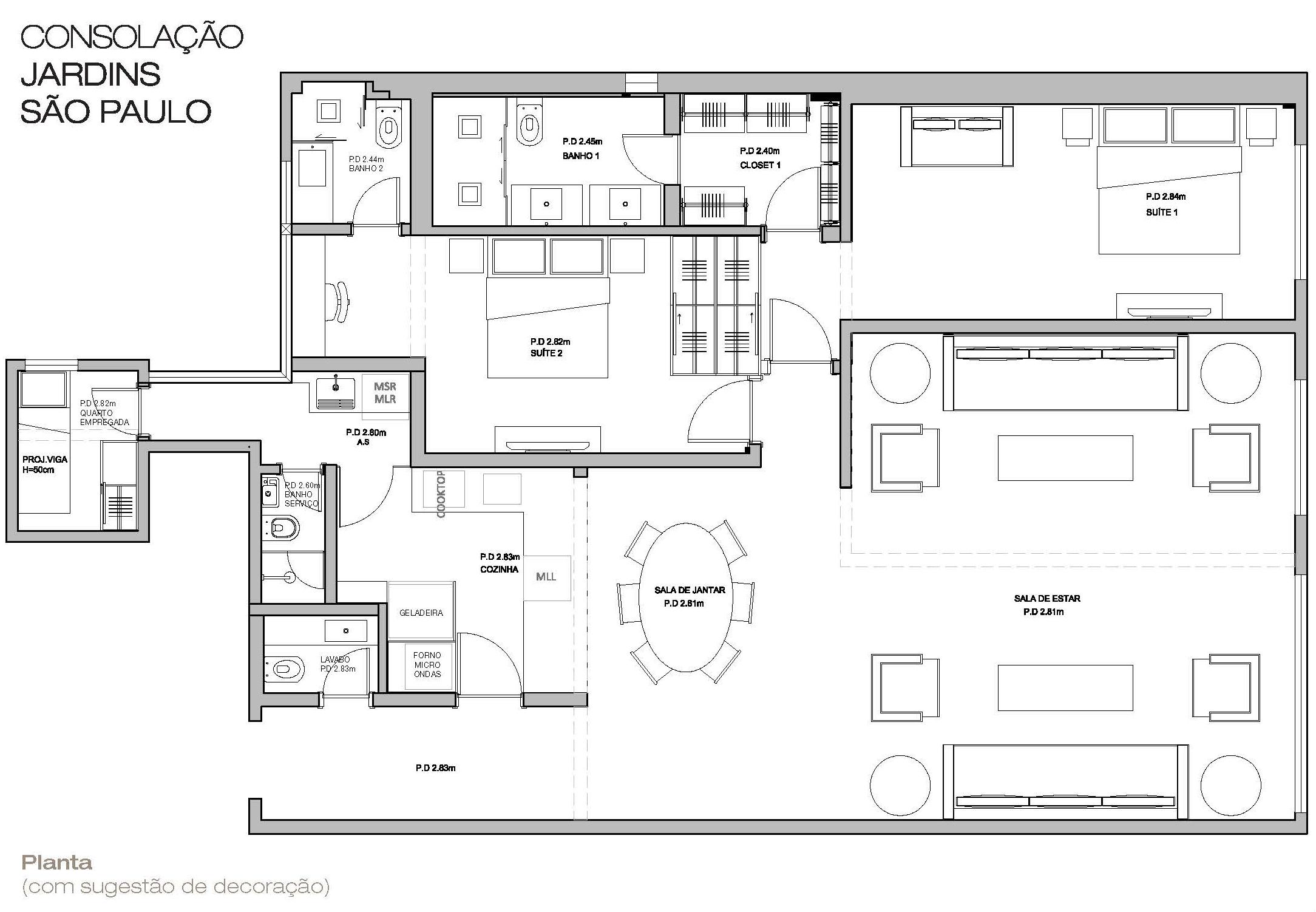
Rua da Consolacao | Dois por andar | Totalmente reformado | 2 suítes | 135m2 | 1 vaga











Um por andar | Jardins | SP | Totalmente reformado | 129m2 | 2 suítes | 1 vaga













Acabamentos de primeira | Totalmente reformado | 230m2 | 3 salas | 3 suítes | 4 vagas













Um por andar | Totalmente reformado | andar alto com excente vista | 300m2 | 3 salas | 4 suítes | 2 vagas













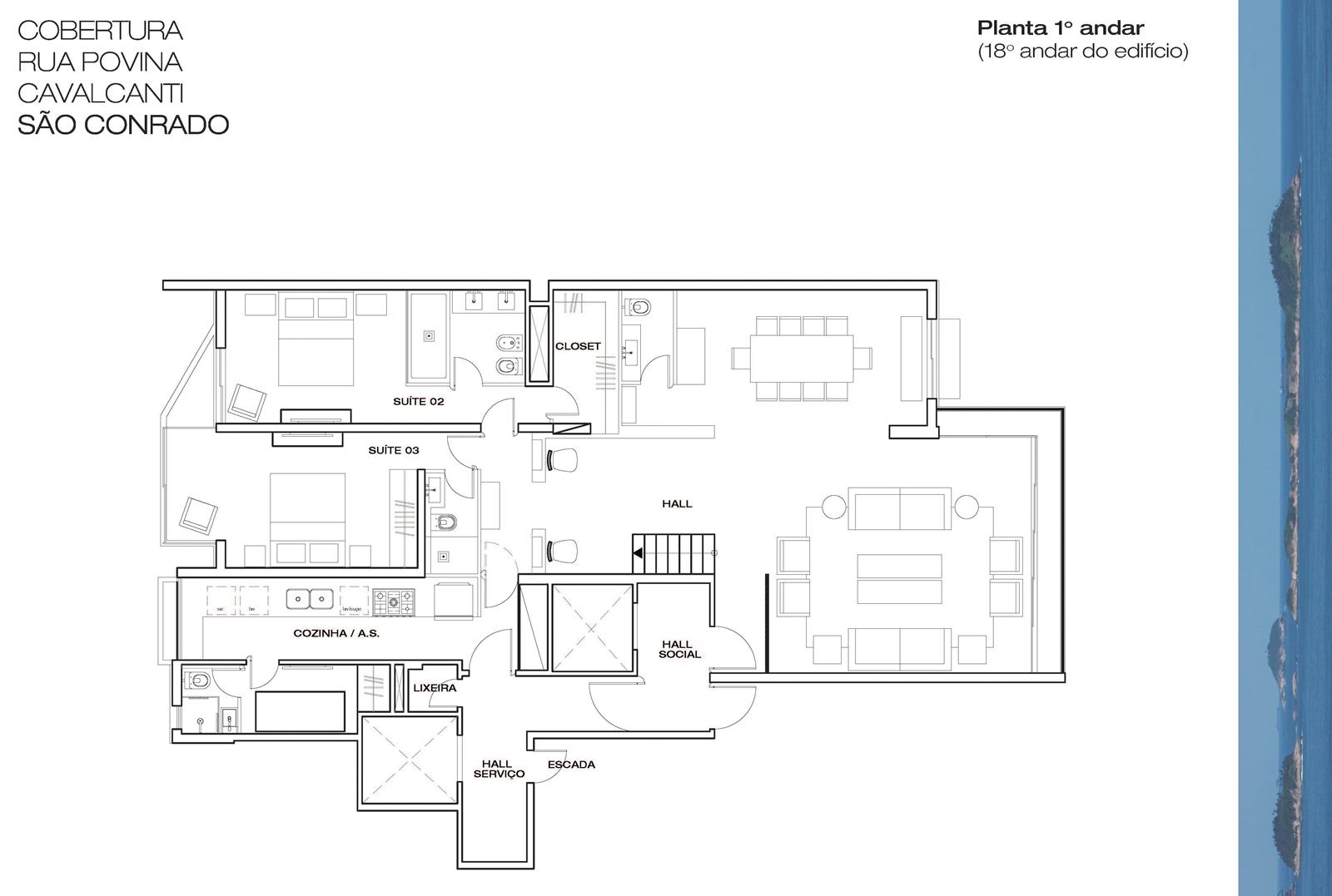
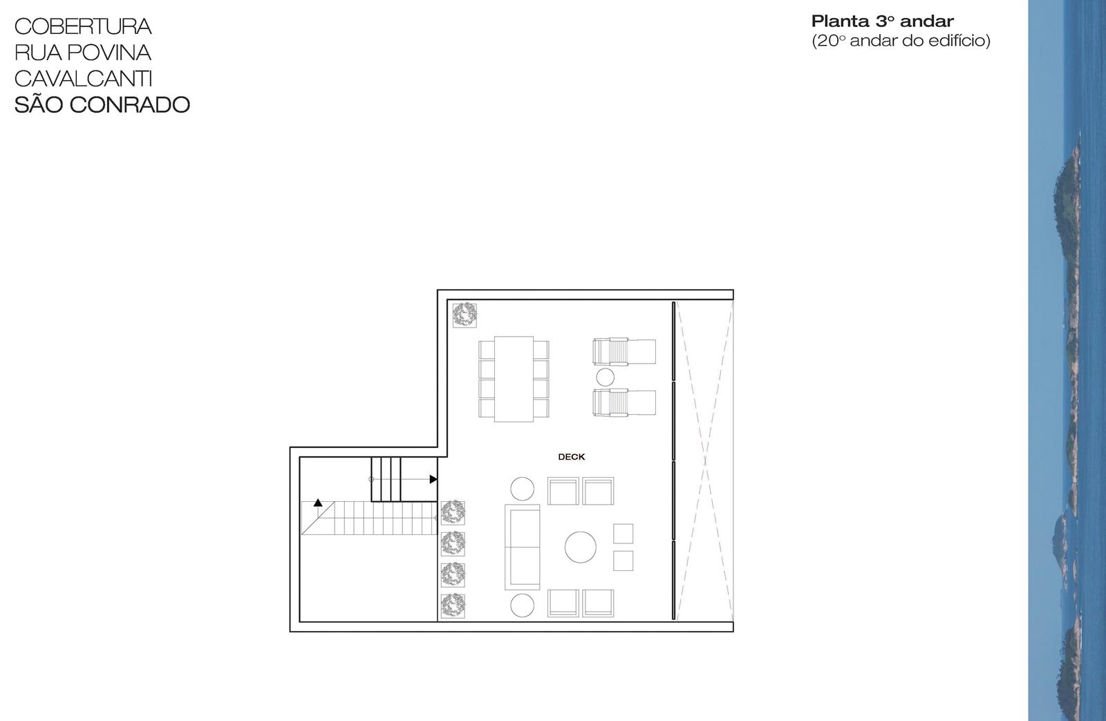
Triplex | Um por andar | Vista do mar e montanha | Totalmente reformado












Quadra da praia | Rua nobre | Um por andar








